For Best Offers Fill Your Details

Prasanna  Developers Developer

Prasanna Developers

Developer

Wakad, Pune Location

Wakad, Pune

Location

About Prasanna Param Project

Prasanna Param, Wakad, Pune, is a residential project by Prasanna Developers situated in the premium location of Wakad, Pune, offering 2 & 3 BHK flats with the availability of Jodi Apartments. Also get Floor Plan, Price Sheets, RERA ID, Reviews, Possession Timeline, Construction Status, Location Advantages, Address, Amenities, and Specifications. Wakad Prasanna Param Pune has an Twin Tower of G+22 Storeys. Wakad Pune Param Prasanna 2 & 3 BHK configurations of 2 BHK with Carpet Area of 781 - 798 Sqft - Price starts from ₹ 91 L* & ₹ 93 L* Onwards. 3 BHK with carpet area of 956 - 1034 Sq.ft - Price starts - ₹ 1.11 Cr* - ₹ 1.20 Cr* Onwards. Param Pune Wakad Prasanna RERA No. P52100052816. Param Pune Wakad Prasanna property focuses on proper design & layout in accordance with the rules of Vastu.

 

Prasanna Param has Excellent Connectivity like State Bank of India - 2.8 Km, HDFC Bank - 3.3 Km, Punjab National Bank - 1.5 Km, South Indian Bank - 3.4 Km, PMC Bank - 3.5 Km. VIBGYOR School - 2.5 Km, Little Millennium - 3 Km, Zee School - 3.2 Km, Dhaniraj School Wakad - 4.6 Km, Wisdom World School - 5.5 Km, Sunshine - 2.9 Km. Poona’s College of Computer Science - 4.0 Km, IBMR College - 3.8 Km, Swami Vivekanand College - 4 Km, IIEBM - 4.1 Km, G.K. Institute - 5.2 Km. Mezza9 - 2 Km, Jalsa Restaurant - 2.7 Km, Spice of Vidarbha - 2.6 Km, Turque by Sayaji - 3.4 Km, Bird Valley - 2.1 Km, Lazeez Resto - 2.7 Km. Dmart - 950 m, Reliance Digital - 600 m, Shell Pump - 1.2 Km, Mumbai Highway - 1.2 Km, Metro Station - 400 m, Phoenix Mall Balewadi - 3 Km, High Street - 5.5 Km.

 

Wakad Param Prasanna Pune has Amenities like grand entrance, approximately 10K sq.ft open space with full amenities, a 1.5 m wide jogging track, multipurpose lawn, amphitheatre with stage common to lawn, herbal garden, sitting area, senior citizen area, peripheral green shrubs, acupressure pathway, a children’s play area with play mounts, sand pit, snake ladder, chess board, activity wall with rubberized flooring. The first floor includes an infinity pool, separate kids pool, floating deck with deck area, floating stepping stone, jacuzzi, pergola sitting, BBQ area with sitting, party lawn, well-equipped air-conditioned gymnasium, separate toilets, changing rooms for ladies gents, multipurpose hall, spill over area with green, separate room for indoor games, separate WFH area.

 

Pune Prasanna Param Wakad by Prasanna Developers has Internal Features like main entrance doors and frames with laminate finish, post forming bed room door and frames with laminate finish, post forming toilet doors with laminate finish and FRP coating on edges, Euro series 3-track powder coated sliding doors with mosquito mesh, GI powder coated openable shutter doors, and artificial marble door frames for toilets. Windows feature Euro series 3-track powder coated sliding windows with mosquito mesh, louvered windows with exhaust fan provision for toilets, artificial marble sill at bottom for all windows, and top hung openable aluminum window for bedroom in 3 BHK. MS safety grills are provided for all windows except toilets, MS safety railing with hand rest pipe fitted inside for extra safety to all balconies, and MS safety railing for staircase. Flooring includes 24” x 48” vitrified tile flooring for the entire flat and 24” x 48” anti-skid flooring in toilets and balconies. Electrical specifications include multi strand branded wires and cables with Legrand or equivalent brand switches and electrical fixtures. Walls and ceiling have gypsum finished walls with acrylic emulsion paint and Pata panning gypsum finish ceiling with acrylic emulsion paint. The kitchen has an artificial marble grey platform with stainless steel sink, dado tiles up to 24” height above platform, and provision for washing machine and dishwasher in dry balcony. Toilets are fitted with Jaquar or equivalent fittings, designer dado tiles up to lintel level, solar water connection in the master toilet, and branded sanitary ware fittings. Value additions include video door phone, full Wi-Fi zone, provision for EV charging station for at least two cars, and cycle parking provision.

 

Prasanna Param Wakad Address - Plot No. 65, Wakad, Near Wakad Hinjewadi Link Rd, Pune 411057.

_ Elevation Image

Prasanna Param Overview

Project Name

Project Name

Prasanna Param
Location

Location

Wakad, Pune
Developer Name

Developer Name

Prasanna Developers
TOTAL TOWERS

TOTAL TOWERS

2
FLOORS

FLOORS

G +22 Storey
APARTMENTS

APARTMENTS

2 & 3 BHK
AREA

AREA

781 - 1034 Sqft
POSSESSION

POSSESSION

Under Construction
RESEDENTIAL

RESEDENTIAL

Property

Prasanna Param Property Specification

G +22 Storeys High-rise homes with ample Sunlight and good Ventilation.
Vastu-Compliant Homes and Zero-Wastage Layout
IBMR College - 3.8 Km, Mumbai Highway - 1.2 Km, Metro Station - 400 m, Phoenix Mall - 3 Km

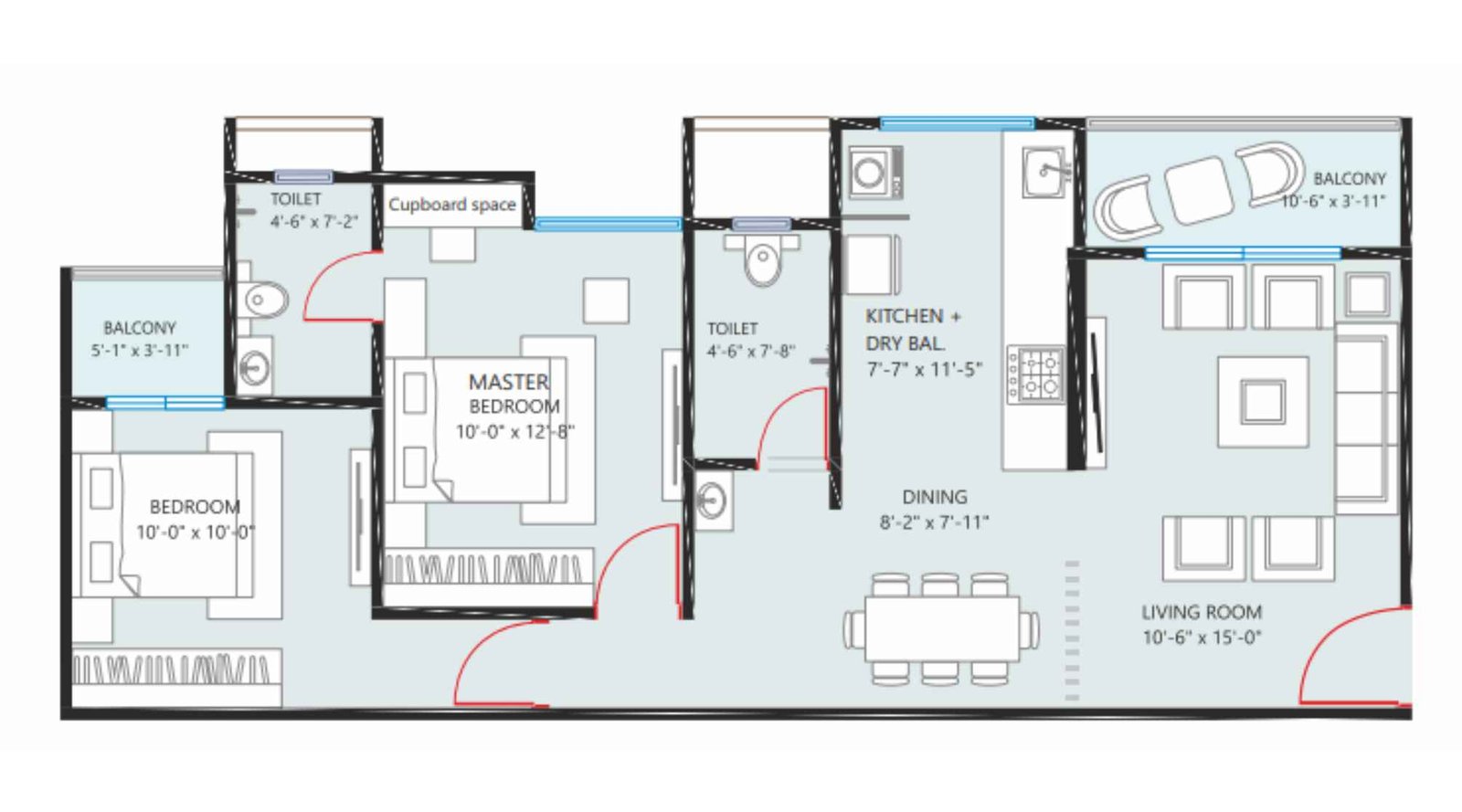
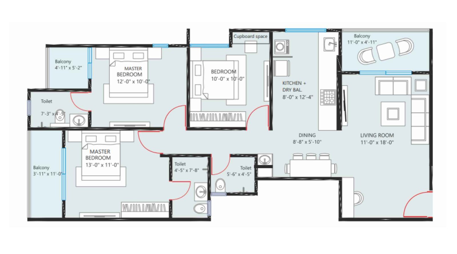
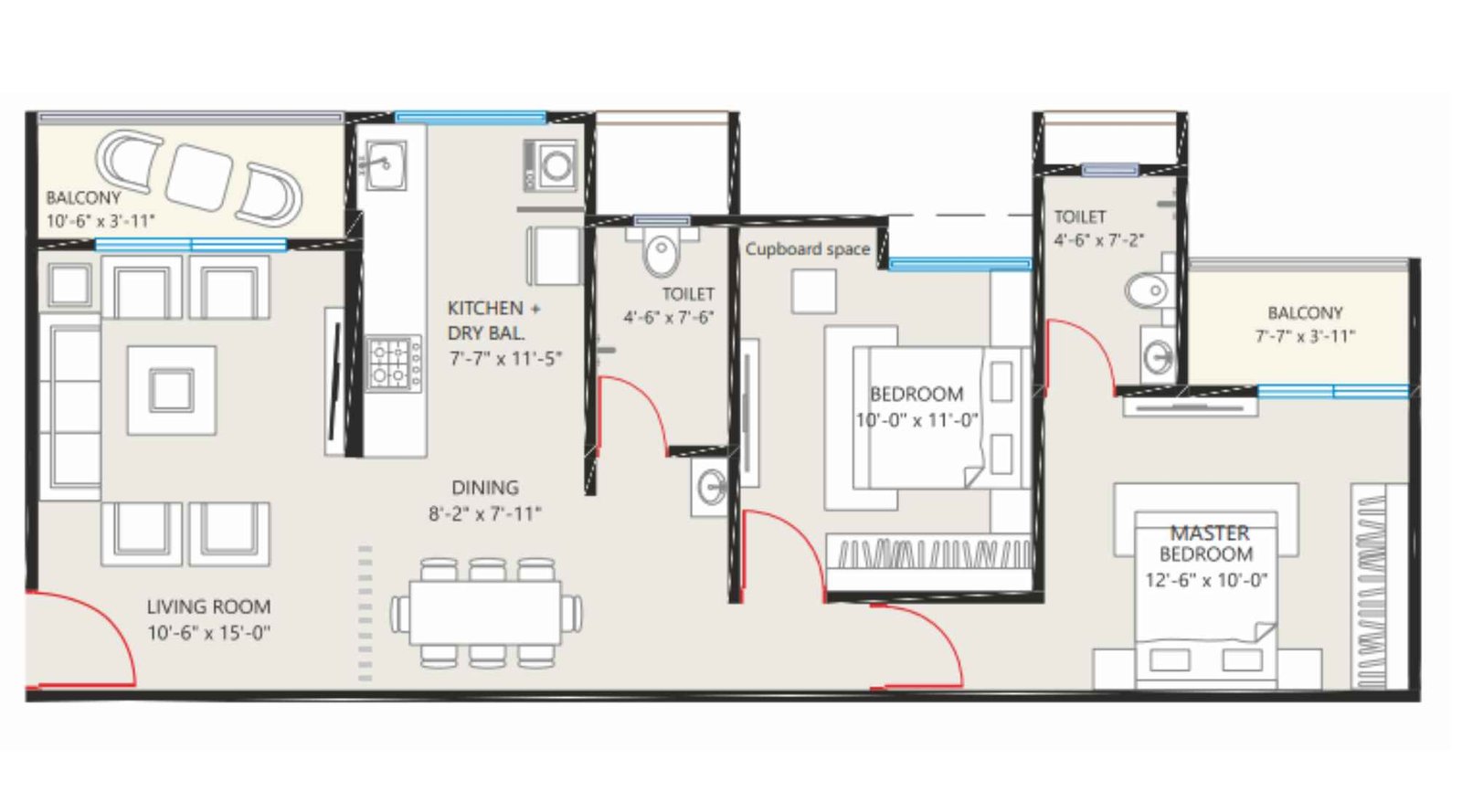
Configuration & Price Of Prasanna Param

Type Carpet Area (sq ft) Price
2 BHK 781 - 798 Sqft ₹ 91 L* - ₹ 93 L*
3 BHK 956 - 1034 Sqft ₹ 1.11 Cr* - ₹ 1.20 Cr*

Prasanna Param Floor Plan

Prasanna Param Walkthrough Video

image

Prasanna Developers -

Prasanna Developers is a reputed real estate developer in Pune, known for delivering quality residential projects with a strong focus on thoughtful design, construction excellence, and customer satisfaction. With a commitment to modern living, Prasanna Developers creates homes that blend functionality, comfort, and contemporary architecture. The group emphasizes timely delivery, transparent practices, and premium specifications, making it a trusted name among homebuyers in Pune. Strategically located projects, well-planned amenities, and attention to detail reflect Prasanna Developers’ vision of enhancing urban lifestyles while maintaining long-term value for residents.

Enquire Now

Prasanna Param Construction Status

Prasanna Param Location

Prasanna Param Sales Gallery / Office Address & Experience Center

Prasanna Param, Plot No. 65, Wakad, Near Wakad Hinjewadi Link Rd, Pune 411057.


Prasanna Param MahaReara

P52100052816

P52100052816

The website project is registered under https://maharera.mahaonline.gov.in

Frequently Asked Question

 The project is named Prasanna Param .

 Prasanna Param is located in Wakad, Pune, a well-developed residential area with excellent connectivity to Hinjewadi IT Park and major city hubs.

 Prasanna Param is developed by Prasanna Developers, a trusted real estate developer in Pune.

 Wakad offers easy access to Hinjewadi, Baner, Aundh, schools, hospitals, malls, and the Mumbai–Pune Expressway, making it ideal for both homebuyers and investors.

Prasanna Param is a residential project designed to offer modern homes with quality construction and lifestyle amenities.

The RERA registration number of Prasanna Param is P52100052816.

Prasanna Param The information provided on this website is intended exclusively for informational purposes and should not be construed as an offer of services. This site is managed by a RERA authorized real estate agent namely Digipace Consulting (OPC) Private Limited (Registered Agent bearing RERA No: A51700026634).

MahaRERA Registration Number: Project Name - Prasanna Param 

RERA no.P52100052816

The pricing information presented on this website is subject to alteration without advance notification, and the assurance of property availability cannot be guaranteed. The images showcased on this website are for representational purposes only and may not accurately reflect the actual properties. We may share your data with Real Estate Regulatory Authority (RERA) registered Developers for further processing as necessary. Additionally, we may send updates and information to the mobile number or email address registered with us. All rights reserved. The content, design, and information on this website are protected by copyright and other intellectual property rights. Any unauthorized use or reproduction of the content may violate applicable laws. For accurate and up-to-date information regarding services, pricing, availability, and any other details, it is recommended to contact us directly through the provided contact information on this website. Thank you for visiting our website.